人防工程做法还不清楚,你需要看这里了
防空地下室施工须按《人民防空地下室设计规范》(GB50038-2005)、《人民防空工程施工及验收规范》(GB50134-2004)、《人民防空工程质量检验评定标准》、《地下防水工程质量验收规范》(GB50208-2002)等有关设计和施工规范施工。施工图须按人防主管部门或其委托审查机构审查合格,方可施工。结合施工现场检查情况,本文将以人防土建、安装及安全施工三个方面具体阐述在实际施工中遇到的有关问题。
一、说明
1.为保证施工质量,工程施工中应对隐蔽工程进行跟踪并作好记录,并应进行中间或分项检验,合格后方可进行下一工序的施工。
2.人防工程在土建施工阶段涉及到各专业的预埋件较多,施工前应认真核对图纸会审,各专业分工明确。设备安装工程应与土建工程紧密配合,土建主体工程结束并检验合格后,方可进行设备安装。
3. 门框梁、柱钢筋及箍筋必须按照人防规范或图纸设计要求施工。
二、钢筋混凝土施工
1、人防工程施工所采用的模板及支架必须具有足够的强度、刚度和稳定性;保证工程结构和构件各部分形状、尺寸和相互位置的正确;模板的接缝不应漏浆;模板及其支架在安装过程中,必须设置防倾倒的临时固定设施。
2、钢筋搭接处,应在中心和两端用铁丝扎牢;绑扎或焊接的钢筋网和钢筋骨架,不得有变形、松脱和开焊;各受力钢筋之间的绑扎接头位置应相互错开。
3、大体积混凝土的浇筑应合理分段进行,使混凝土沿高度均匀上升;浇筑应在室外气温适中时进行,混凝土浇筑温度不宜超过28摄氏度(混凝土50mm处)。
4、工程口部、防护密闭段、采光井、水库、水封井、防毒井、防爆井等有防护密闭要求的部位,一次整体浇筑混凝土。
三、底板浇注
1、根据底板荷载主要系由下向上承受水压力、人防等效静载等荷载,在梁板体系中,底板、顶板上层钢筋应从梁的上层主筋下方穿过,反梁时,详见RF-GS-03,控制好梁的轴线位置、截面尺寸、标高。控制好底板、顶板面筋的间距,按施工图纸及相关规范要求布置φ8@450 X 450mm 梅花型拉结钢筋,拉结钢筋应拉住最外层受力钢筋及支撑体系钢筋(马凳 φ14@750 X 750mm)(见设计规范第4.11.11条或图纸要求施工)
2、平时使用的出入口及防护单元之间洞口如若采用构件封堵,应在钢筋绑扎阶段注意封堵框的预埋,在底板后浇面层应按设计选用的图集设置封堵凹槽。
3、在底板混凝土浇筑前按施工图纸将临空墙、密闭墙、人防水池侧壁、防护单元隔墙等人防墙体钢筋进行预埋。预埋时,墙体钢筋的锚固应符合施工图纸跟相关规范要求,应伸入底板,对锚。同时注意②号钢筋的位置,应在抗冲击波的一侧,即非人防区的一侧。单片Q1、Q2系列墙体有暗梁及不大于6米人防构造柱,当墙体底部、顶部无梁时,应按施工图纸要求配筋。墙体的交接处跟转角的钢筋详见RF-GS-03,人防墙详见RF-GS-07。
4、人防工程口部,人防门的门框柱钢筋、门槛钢筋应在底板混凝土浇筑前按施工图纸及相关规范要求成型,注意门槛箍筋(手枪箍)应该是闭口、封闭箍。控制好其门槛的标高、截面尺寸、应满足门框、门扇的安装、开启。
5、在底板钢筋绑扎阶段应注意在人防门的门洞四角应加上45度的2φ16斜角筋,≥500mm厚的门洞应3φ16,且长度不小于1000mm,不得漏埋。
6、防爆地漏、呼唤铵钮及下水管预埋:战时给排水管材应为镀锌钢管;战时排水防爆地漏为丝接口; 防爆地漏应按施工图纸的位置、标高进行预埋,防爆地漏面应低于周围建筑完成地面的50-100mm以上,若无法把握防爆地漏尺寸,建议施工单位对防爆地漏一起与钢管接好预埋到设计标高后再浇筑底板砼。
7、底板体系中,注意排水沟、集水井等,应按其大样详图施工,详见RF-GS-05(集水井)、RF-GS-15(排水沟)。排水沟在相邻的防护单元、人防区与非人防区之间不能贯通。应往各自的集水井处排。
四、侧墙浇筑
1、人防墙体中的短管、风管、测量管等预埋件应按施工图纸中的位置、标高、管件尺寸进行预埋。短管套件的制作时,应注意管边间的间距应 ≥ 50mm。预埋时,应伸出模板面的50-80mm左右,管件的翼环选用 ≥ 3mm厚的钢板,高度 ≥ 50mm。穿过人防墙(穿板)的管件,应做密闭处理及刚性防水。风管跟钢筋搭接处应双面满焊。管件的预埋应考虑在水、电、消防、信息监控等管件的数量,人防墙体浇筑后不得后凿、打洞。
2、防护密闭门门框墙为悬臂板设计时,应注意水平受力筋的直径、间距、锚固方向及锚固长度;受力筋应配置在外侧;且门框墙受力筋宜封闭。同时应注意门洞四角斜向钢筋的布置;上门框设水平梁时,其方向应朝向人防区内,且应锚入两边墙内。
3、临空墙、门框墙的模板安装,其固定模板的对拉螺栓上严禁采用套管、混凝土预制件等,应使用止水螺杆。
不能使用pvc管 不能使用混凝土预制件
不能使用防水套管 错误做法
应该使用止水螺杆
4.人防门的安装对门框墙的垂直度要求很高,施工单位应与人防门生产厂家密切配合,在支模时注意不得使用大模板, 门框模板支好后施工单位应作复核,若有偏差则需由施工单位会同防护门安装厂家及时对门框墙垂直、水平作调正,控制在允许偏差以内后再浇筑砼。
5. 为保证人防工程施工质量,防护密闭门、密闭门和活门门框墙、临空墙必须整体浇筑,不留水平施工缝,后浇带不能穿过三防段和人防门框应严格按照设计图纸施工RF-GS-02;施工缝不能留在三防段处;施工缝宜留成企口缝,如果留平缝则须设止水钢板。顶板上留置的伸缩缝不得影响防空地下室的防护密闭功能,染毒集水坑混凝土应一次浇筑到位,混凝土水箱不能在顶板上留施工缝,施工洞口宜设在人孔下得墙上,施工洞口留置应按后浇带的做法,在墙上埋设止水钢板,做蓄水试验。
后浇带不应过人防门或封堵门部位
6. 战时给排水,供配电以及平时使用的消防,采暖及电气有关预埋套管不能漏埋,各专业应及时作复核;管线穿越人防围护结构时应在穿墙处预埋防护密闭套管(加抗力片)。
消防预埋管 应提前预埋与墙内
平时使用的电线电缆穿过人防围护结构预埋套管
7.战时通风穿墙管道必须预埋到位,预埋管应加密闭翼环,该环与预埋管满焊,翼环高度≥50mm、板材厚≥3mm。平时通风管穿人防墙体(临空墙、密闭墙)时不能预留孔洞,必须在人防墙体有平战转换措施(连接套管间距 > 50mm)。
预埋管翼环宽度≥50mm、板材厚≥3mm 通风预埋管预埋应设洞口加强筋
通风管穿人防墙体不应后开洞
8.出入口和连通口的防护密闭门门框墙、密闭门门框墙上均应预埋4-6根备用管,管径为50-80mm,管壁厚度≥2.5mm的热镀锌钢管,并应符合防护密闭要求。
备用进线套管可兼作气密测量管使用,作法相同,埋于工事口部
9.防空地下室内的各种动力配电箱、照明箱、控制箱及消防箱,不得在外墙、临空墙、防护密闭隔墙、密闭隔墙上嵌墙暗装。若必须设置时,应采取挂墙式明装。
不得在人防墙体嵌墙暗装配电箱
10. 战时进、排风竖井应该设计、施工一次到位。施工时应注意在竖井内设爬梯;出地面部分作防倒塌棚架结构;地面通风口设多面进风百叶窗,其中靠爬梯侧为活置式,口径≥500×800mm。
11. 排风口部防密门开启侧防爆呼唤铵钮须在浇筑侧墙前预埋到位,防爆电缆井请注意不要漏掉施工。
五、顶板浇筑
1. 顶板吊钩预埋。各人防门、临战封堵在顶板内预埋吊钩土建施工单位不能漏埋。
2. 在进风口部顶板内超压测压装置DN15镀锌钢管须预埋。
3. 人防顶板、底板不留施工缝,顶板预埋管线应采用热镀锌钢管跟热镀锌铁盒。
第二部分:设备安装
一、说明
1.为保证人防工程施工质量,人防工程专用防护防化设备的安装应选择具有人防安装资质的施工单位。
2.施工单位在设备安装时如遇到图纸设计错误或表示不请,须按照设计及施工规范,参照各专业图集进行安装。给排水专业参照图集《07FS02》;通风专业参照图集《07FK02》;电气专业参照图集《07FD02》。
3.在安装过程中,不得在防护密闭墙及密闭墙上后开洞。
二、消防、给排水的安装
1、与防空地下室无关的管道不宜穿过人防围护结构,上部建筑的生活污水管、雨水管、燃气管不得进入防空地下室。
2、穿过防空地下室顶板、临空墙和门框墙的管道,其公称直径不宜大于150mm,此时在穿墙处应设置刚性防水套管。若管径大于150mm,在其穿墙(穿板)处应设置外侧加防护挡板(抗力片)的刚性防水套管。
刚性防水套管(管径小于150mm) 刚性防水套管(管径大于150mm)
3、穿过防空地下室顶板、临空墙和门框墙的管道,均应在人防内侧设置防护阀门;若管道穿过防护单元之间的防护密闭隔墙,应在防护密闭隔墙两侧设置防护阀门(指普通闸板阀或截止阀,工作压力大于1.0Mpa的钢芯阀),安装位置距穿人防墙、板部位不宜大于200mm。
防护阀门指普通闸板阀或截止阀,工作压力≥1.0Mpa的钢芯阀,安装在距穿墙点200mm内
4、穿过人防围护结构的管道均应采用钢塑复合管或热镀锌钢管,不得使用铝塑复合管、pvc塑材管等。
5、污水出水管上不但要在设置防护阀门,其防护阀门符合本案第3条要求,还应在管道上设置止回阀。
三.采暖通风设备的安装
1、凡用于人防工程的人防专用防护、防化设备竣工验收前应安装到位,且必须采用国家人防定点厂家的产品,由具有人防安装资质的单位进行安装。专用防护、防化设备仅限于本省内,若选购外省产品,须到西安市人防工程质量安全监督站进行厂家资质审核,审核通过后方可采用。
2、从清洁区开始第一道手动密闭阀至工程口部的管道及配件,应采用厚度2-3mm的钢板焊接制作。其焊缝应饱满、均匀、严实。
3、染毒区的通风管道应采用焊接连接。通风管道与通风设备及密闭阀应采用带密封槽的法兰连接,其接触应平整;法兰垫圈应采用整圈无接口橡胶密封圈,橡胶厚度不应小于4mm。
4、设备安装前应仔细检查安装方向是否正确,特别注意手动密闭阀的安装,阀门上箭头标志方向应与冲击波的方向一致,故在进风口阀门上箭头指向进风方向,而在排风口却逆向排风方向。
手动密闭阀方向应与冲击波方向一致
5、对于一些细小检测设备也应注意不得漏装。如室内外压差测量装置(位于风机房或防化值班室)、气密测量管(位于工程口部)及放射性监测管、压差测量管、尾气取样管、增压管等(位于口部进风管上)。如图纸上未设计,施工单位可根据图集《07FK02》确认其具体安装位置及作法
放射性监测管、压差测量管、尾气取样管、增压管具体作法及安装位置
6、如若平时特殊需求要使用战时通风设备,应注意经常清洗和更换设备部件,保证战时通风质量不受影响。
四、电气的安装
1、各人员出入口和连通口的防护密闭门门框墙、密闭门门框墙上均应预埋4-6根备用管,管径为50-80mm,管壁厚度≥2.5mm的热镀锌钢管,并应符合防护密闭要求。
2、当防空地下室内的电缆或导线数量较多,且有集中敷设时,可采用电缆桥架敷设的方式。但电缆桥架不得直接穿过临空墙、防护密闭隔墙、密闭隔墙。当必须通过时应改为穿管敷设,并应符合防护密闭要求。
3、电气暗配管穿越防护密闭隔墙或密闭隔墙时,应在墙两侧设置密闭过线盒,盒内不得有接头。过线盒穿线后应密封,并加盖板。防护密闭接线盒规格:180×150×(50~120),钢板厚度为3mm。防护密闭接线盒以上混凝土厚度应不小于200mm。
4、由室外地下进、出防空地下室的强电或弱电线路,应分别设置强电或弱电防爆波电缆井。防爆波电缆井应设置在紧靠外墙外侧。防爆波电缆井内战时电源进线套管应按图纸预埋到位。
5、防空地下室内安装的变压器、断路器、电容器、等高低压电器设备,应采用无油、防潮设备。
6、战时三种通风方式显示箱、控制箱及音响呼唤系统均应按图施工安装到位。
第三部分:安全施工
1、人防工程开工前,建设单位应与施工单位签订安全生产责任书,分工明确,责任到人。
2、施工单位应制定详细的安全生产管理制度,此制度应包括安全生产纪律、安全技术措施、安全生产检查制度、安全教育制度、伤亡报告制度、安全技术交底制度、安全生产例会制度、施工现场电气安全管理规定、机械设备事故处理规定、防火制度、特种作业人员持证上岗制度、安全生产资金投入管理制度等。
3、在施工过程中,应严格安装各项制度执行,若出现安全问题应及时与我站汇报,不得隐瞒不报。
管法兰及其密封形式选用速查,涨知识
管法兰及其垫片、紧固件统称为法兰接头。法兰接头是工程设计中使用极为普遍、涉及面非常广泛的一种零部件。它是配管设计、管件阀门必不可少的零件,而且也是设备、设备零部件(如人孔、视镜液面计等)中必备的构件。此外,其它专业如工业炉、热工、给排水、采暖通风、自控等,也经常使用法兰接头。
GB国标钢法兰标准
国标法兰是指按中华人民共和国国家标准《GB/T 9112~9124-2010钢制管法兰》的规定生产的法兰片。
国标法兰标准由中华人民共和国国家质量监督检验检疫总局和中国国家标准化管理委员会于2011-01-10联合发布,从2011-10-01起实施的推荐性标准。
GB/T 9112~9124-2010一共包括了以下13项标准:
代替了国标GB/T9112-2000;GB/T10745-1989标准
GB/T 9112-2010 钢制管法兰类型与参数
GB/T 9113-2010 整体钢制管法兰
GB/T 9114-2010 带颈螺纹钢制管法兰
GB/T 9115-2010 对焊钢制管法兰
GB/T 9116-2010 带颈平焊钢制管法兰
GB/T 9117-2010 带颈承插焊钢制管法兰
GB/T 9118-2010 对焊环带颈松套钢制管法兰
GB/T 9119-2010 板式平焊钢制管法兰
GB/T 9120-2010 对焊环板式松套钢制管法兰
GB/T 9121-2010 平焊环板式松套钢制管法兰
GB/T 9122-2010 翻边环板式松套钢制管法兰
GB/T 9123-2010 钢制管法兰盖
GB/T 9124-2010 钢制管法兰
技术条件
我国现行的法兰标准分为两个体系,分别是PN系列(欧洲体系)和Class系列(美洲体系)。
本标准规定的压力标记分为PN标记和Class标记。
PN标记有12个压力等级,分别为:
PN2.5; PN6; PN10; PN16; PN25; PN40; PN63; PN100; PN160; PN250; PN320; PN400
Class标记有6个压力等级,分别为:
Class 150; Class 300; Class 600; Class 900; Class1500; Class 2500
法兰的材质:锻钢、WCB碳钢、不锈钢、316L、316、304L、304、321、铬钼钢、铬钼钒钢、钼二钛、衬胶、衬氟材质。
执行标准有GB系列(国家标准)、JB系列(机械部)、HG系列(化工部)、ASME B16.5(美标)、BS4504(英标)、DIN(德标)、JIS(日标)。
国标法兰和非标法兰的区别在哪?
1、国标法兰属于通用件,各种规格的法兰的外径、螺孔、厚度都是固定的。而且国标法兰考虑了安全因素,所以尺寸与厚度取的安全余量比较大。
2、而非标法兰一般是企业或者个人为了节约材料,或者就地取材,而自己设计的法兰。
一般非标法兰都会设计的比国标法兰小一点、薄一点,以节约材料,也可以更改密封面形式,比如用O型圈密封。
3、国标法兰市场上都能买到,非标法兰必须自己设计、自己加工。
4、非标法兰适用场合不多,比如一个设备筒体法兰工作压力只有0.3MPA,你觉得没必要用0.6MPA的国标法兰,你就自己设计一个小而薄的非标法兰,但是必须考虑自己设计与加工的成本要小于你节约下来的材料成本。
法兰类型和密封面形式
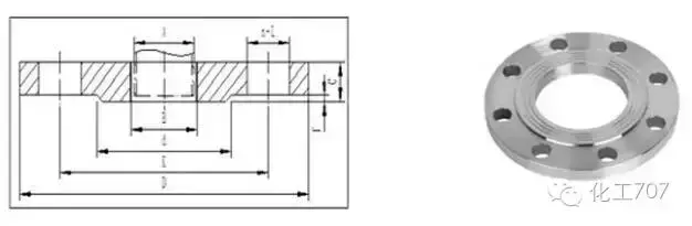
一、板式平焊法兰
板式平焊法兰(化工标准HG20592、国家标准GB/T9119、机械JB/T81):取材方便,制造简单,成本低,使用广泛;但刚性较差,因此不得用于有供需、易燃、易爆和较高真空度要求的化工工艺配管系统和高度、极度危害的场合。平焊法兰的主要设计缺点是它不能保证无泄漏。
密封面型式有平面和突面。
二、带颈平焊法兰
带颈平焊法兰属于国标法兰标准体系。是国标法兰(又称GB法兰)的其中一种表现形式,是设备或管道上常用的法兰之一。
带颈平焊法兰颈部高度较低,对法兰的刚度、承载能力有所提高。与对焊法兰相比,焊接工作量大,焊条耗量高,经不起高温高压及反复弯曲和温度波动,但现场安装较方便,可省略焊缝拍揉伤的工序。
三、带颈对焊法兰
带颈对焊法兰全称带颈对焊钢制管法兰,也叫高颈法兰,英文名称:Slip-on 简称SO。
带颈平焊法兰同板式平焊法兰一样也是将钢管、管件等伸入法兰内通过角焊缝与设备或管道连接的法兰。
带颈平焊法兰的密封面形式有:
突面(RF)、凹面(FM),凸面(M)、榫面(T),槽面(G),全平面(FF)。
带颈平焊法兰的通径范围:DN10~DN600
适用范围:PN系列 PN2.5~PN40; Class系列Class150~Class1500
法兰材料:碳素钢、珞钼钢、304、316、304L、316L、321、347、CF8C。
制造工艺 :锻造。
优点:带颈平焊法兰也属于平焊法兰,因为有个短颈,从而提高了法兰的强度改善了法兰的承载力度。所以可以用于更高压力的管道上。
缺点:较板式平焊法兰而言造价更高,由于其形状的特点在运输途中更容易磕碰。
四、整体法兰
整体法兰是一种法兰的连接方式。也是属于带颈对焊钢制管法兰的一种。材质有碳钢、不锈钢、合金钢等。在国内各个标准之中,用IF来表示整体法兰。多用于压力较高的管道之中。生产工艺一般为铸造。
在法兰类型中就是用一个“IF”来表示整体法兰的类型。一般为突面(RF),如果在易燃、易爆、高度和极度危害的使用工况之中,则可以选用除了RF面之外的凸凹面(MFM)及榫槽面(TG)的密封面的形式。
五、承插焊法兰
承插焊法兰是一端与钢管焊接另一端用螺栓连接的的法兰。
密封面形式:突面(RF)、凹凸面(MFM)、榫槽面(TG)、环连接面(RJ)
应用范围:锅炉压力容器、石油、化工、造船、制药、冶金、机械、冲压弯头食品等行业承插焊法兰:常用于PN≤10.0MPa,DN≤40的管道中;
六、螺纹法兰
螺纹法兰是将法兰的内孔加工成管螺纹,并和带螺纹的管子配套实现连接,是一种非焊接法兰。它和平焊法兰或对焊法兰相比,螺纹法兰具有安装、维修方便的特点,可在一些现场不允许焊接的管线上使用。
合金钢法兰有足够的强度,但不易焊接,或焊接性能不好,亦可选择螺纹法兰。但在管道温度变化急剧或温度高于260℃低于-45℃的条件下,建议不使用螺纹法兰,以免发生泄漏。
七、对焊环松套法兰
对焊环松套法兰是可以活动的法兰片,一般是配套在给排水配件上,厂家出厂时伸缩节两端就各有一片法兰,直接与工程中的管道、设备用螺栓连接。
使用对焊环松套法兰的目的一般是为了节省材料,其结构分成两部分,管子部分一头和管道接,一头做成对焊环。法兰盘采用低等级的材料,而管子部分使用和管道一样的材料,达到节省材料的目的。
对焊环松套法兰的优点:
1、节约成本。当管材材质特殊,价格昂贵时,焊接同样材质的法兰成本高。
2、不便于焊接或不便于加工或需要的强度大。如塑料管、玻璃钢管之类。
3、便于施工。如连接时法兰螺栓孔对应不便于找正或者防止日后更换设备法兰螺栓孔有变等。
缺点:
1、承受压力低。
2、焊环处强度低(特别是厚度3mm以下时)
八、平焊环松套法兰
平焊环松套法兰盘是可以活动的法兰片。直接与工程中的管道、设备用螺栓连接。使用平焊环松套法兰盘的目的一般是为了节省资料,其结构分成两部分,管子局部一头和管道接,一头做成翻边,法兰盘部分套在翻边上。法兰盘采用低等级的资料,而管子局部使用和管道一样的资料,达到节省资料的目的。
平焊环松套法兰的优点:
1)方便于焊接或方便于加工或需要的强度大,如塑料管、玻璃钢管之类。
2)便于施工,如连接时法兰螺栓孔对应方便于找正或者防止日后更换设备法兰螺栓孔有变等。
3)价格高贵时,节约本钱。当管材材质特殊,焊接同样材质的法兰成本高。
平焊环松套法兰的缺点:
1)接受压力低。
2)焊环处强度低(特别是厚度3mm以下时)
九、法兰盖
法兰盖也称盲板法兰、盲板。是中间不带孔的法兰,供封住管道堵头用。作用与焊接封头及丝扣管帽是一样的,只不过盲板法兰和丝扣管帽可以随时卸下来,而焊接封头则不行。
密封面的形式种类较多,有全平面、突面、凹凸面、榫槽面、环连接面。
十、衬里法兰盖
衬里法兰盖是一种盲板法兰,接近介质的一边堆焊不锈钢,为1 个整体。衬里法兰盖用在有腐蚀性介质的管道上作盲板用。与普通法兰盖的区别是与介质接触面增加了防腐衬层。
法兰代号标记规定
PN系列
其中,b为法兰的类型
c为法兰的公称尺寸与适用钢管外径系列。若为A系列可以省略,B系列须在后面注明。另外,整体法兰、螺纹法兰、法兰盖的适用钢管外径系列可省略。
d为公称压力等级PN
e为密封形式代号
f为钢管壁厚,由用户提供。带颈对焊法兰、对焊环(松套法兰)应注明钢管壁厚
g为材质牌号
h表示其他。比如附加的要求
CLASS系列
其中,b为法兰的类型
c为法兰的公称尺寸
d为公称压力等级Class
e为密封形式代号
f为钢管壁厚,由用户提供。带颈对焊法兰、对焊环(松套法兰)应注明钢管壁厚
g为材质牌号
h表示其他。比如附加的要求
相关问答
人孔RFVIS-35CM(W.D-2222)450-4.0是什么意思,求助啊-盖德...
人孔rfvis-35cm(w.d-2222)450-4.0是什么意思人孔密封面rf应该是iv类材料s-35cm为等长双头螺柱材质...谢谢。。。。。。。。。。。。。。。...
